ID CP2815093

Chirie, spațiu comercial, 92.4 mp, strada Ion Creangă, Buiucani

ID CP2815093

1,800 € TVA inclus

Spațiu comercial de închiriat
Buiucani, Chișinău
92.4 mp
2017

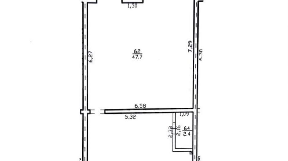
Spațiu comercial cu o suprafață de 92.4 mp, amplasat pe strada Ion Creanga 61, Buiucani.

Compartimentat: open space compartimentat in 2 zone, bloc sanitar.

Facilitati:

- parter;

- bloc nou;

- intrare separata;

- bilateral;

- reparatie euro;

- conectat la toate comunicatiile;

- geamuri panoramice;

- zona rezidentiala activa;

- acces la transport public.

Potrivit pentru: magazin, farmacie, birou, centru medical, reprezentanta,etc.

Pentru a beneficia de mai multe detalii, contactați expertul nostru.

Citește mai mult

  • Tip imobil
    Bloc de apart.
  • Trafic pietonal
    Moderat
  • Etaj
    Parter
  • Număr camere
    2
  • Număr băi
    1
  • Suprafață utilă
    92.4 mp
  • Vitrină (m)
    6.0 m
  • Înălțime interioară
    28.0
  • Disponibilitate
    Imediat
  • Compartimentare spațiu
    Compartimentat
  • An construcție
    2017
  • Construcție nouă
    Da
  • Număr etaje clădire
    9

Facilități

Apă
Canalizare
Curent
Gaz
Ecaterina Doroș - Realist Estate Agency SRL
Ecaterina Doroș
Expert imobiliar

+37378888257


Solicită chiar acum o vizionare
Telefon
Sună acum Solicită vizionare
Necesare:

Site-ul nu poate funcționa corect fără aceste cookie-uri. Vezi cookie-urile

Statistică:

Strângem statistici anonime despre voi, vizitatorii unici, pentru a vă îmbunătăți experiența dumneavoastră. Vezi cookie-urile

Marketing:

Pentru a ne promova mai eficient serviciile noastre, folosim cookies pentru a vă identifica și a vă oferi proprietăți și servicii personalizate. Vezi cookie-urile

Acest site folosește cookies, află detalii. Alege ce tipuri de cookies dorești să permitem: