ID CP2589230

Vânzare, vilă, 481 mp, Brașov

ID CP2589230

589,000 € (negociabil)

Casă / Vilă cu 15 camere de vânzare
Romania, Brasov
481 mp
2014

Vilă impresionantă cu 15 camere, vedere panoramică spre oraș și munți – investiție cu potențial ridicat

O proprietate la preț unic, ideală pentru locuință de lux, pensiune sau investiție cu randament excelent!

• Localizare premium – liniște, intimitate și o panoramă spectaculoasă spre oraș și munți

• Casă individuală – disponibilă imediat!

• Suprafață utilă: 481 mp

• Amprentă la sol: 258 mp

• Teren total: 506 mp

• Curte liberă: 248 mp – ideală pentru amenajare grădină, terasă sau zonă de relaxare

• Număr camere: 15 – spațiu generos, ideal pentru multifuncționalitate

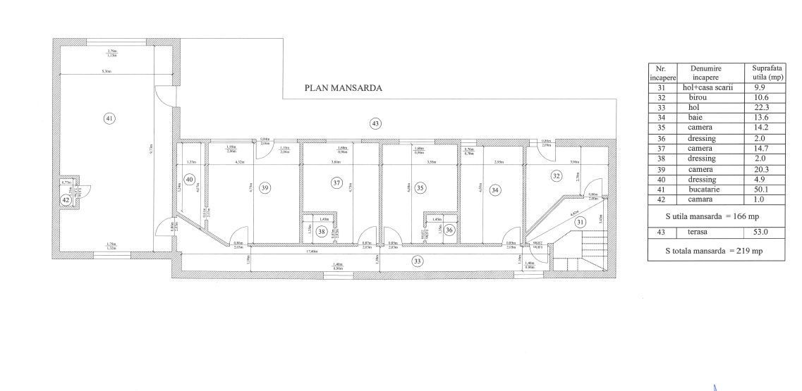
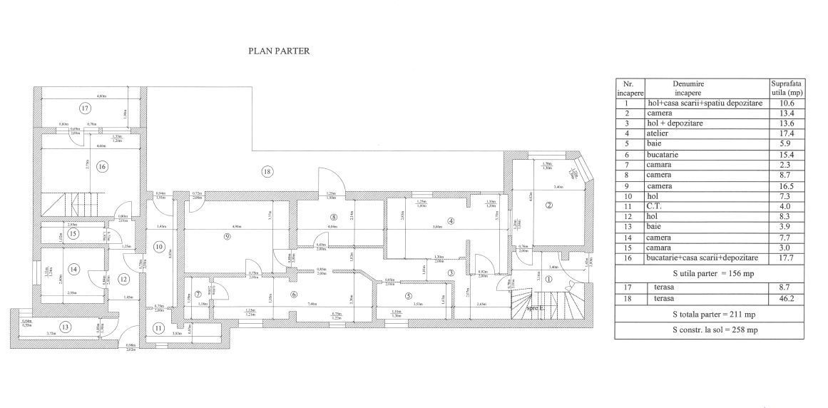
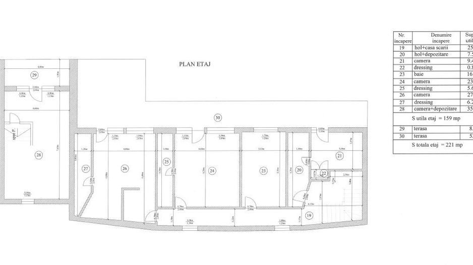
• 3 nivele: parter + etaj + mansardă

✔ Vedere panoramică

✔ Compartimentare versatilă

✔ Potențial de transformare în afacere de succes

Compartimentată în 15 camere, 4 băi și 3 bucătării.

Această configurație o face ideală și pentru închirieri în regim Airbnb, oferind o experiență unică și personalizată oaspeților.

• Parter (150 mp utili + 45 mp terasă): 6 camere, 2 bucătării, 2 băi

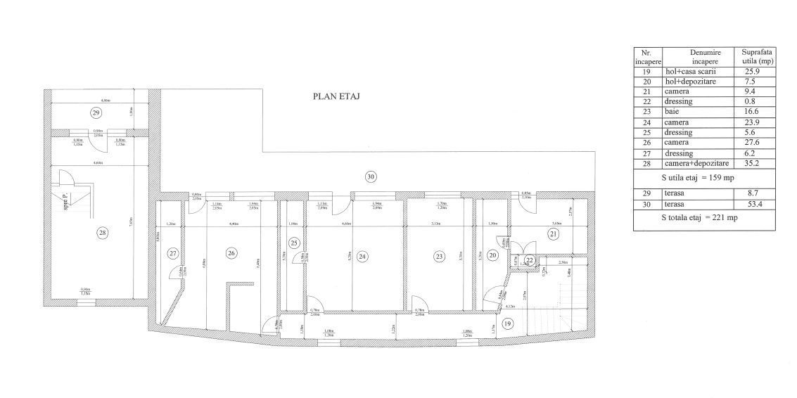
• Etaj (170 mp utili + 40 mp terasă): 5 camere, 1 baie

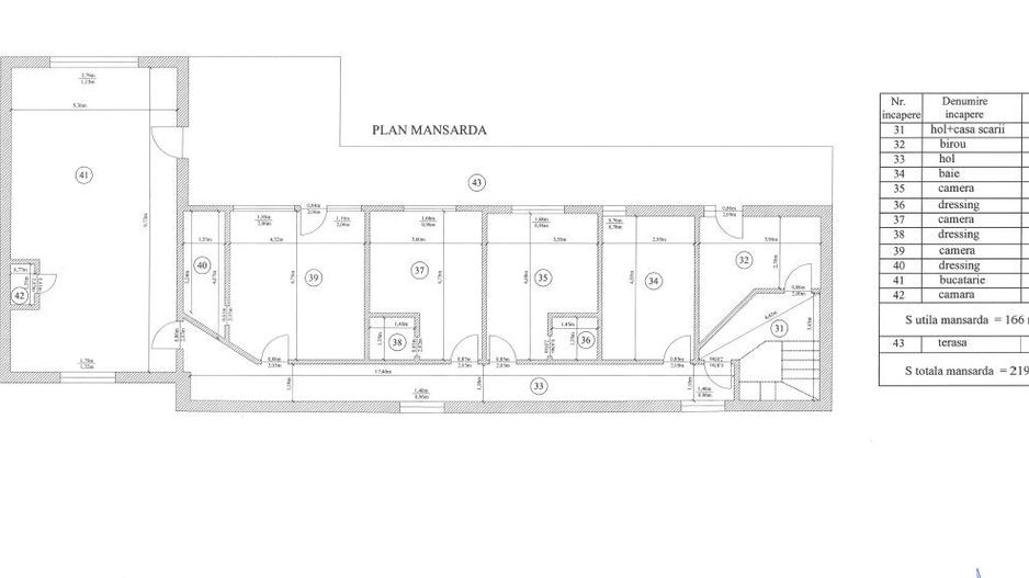
• Mansardă (160 mp utili + 40 mp terasă): 4 camere, 1 bucătărie, 1 living și 1 baie

Fiecare nivel se bucură de terase generoase (45 mp la parter, 40 mp la etaj și 40 mp la mansardă) care dezvăluie o panoramă superbă asupra orașului și împrejurimilor, oferind un cadru perfect pentru relaxare sau socializare.

Preț vânzare: 589.000 € sau 1.224 €/mp – negociabil

Nu rata această oportunitate rară!

Proprietatea este pregătită pentru noul proprietar – disponibilă imediat.

📞 Contactează-ne pentru detalii sau programarea unei vizionări!

Citește mai mult

  • Număr camere
    15
  • Disponibilitate
    Imediat
  • Tip casă
    Individual
  • Stare interior
    Necesită renovare
  • Suprafață utilă
    481 mp
  • Suprafață construită la sol (Amprentă)
    258.0 mp
  • Suprafață teren
    506 mp
  • Suprafață curte liberă
    248 mp
  • Stadiu construcție
    Necesită renovare
  • An construcție
    2014
  • Construcție nouă
    Da

Facilități

Apă
Canalizare
CATV
Curent
Gaz
Iluminat stradal
Internet
Mijloace de transport în comun
Străzi asfaltate
Telefon
Vedere panoramică
Vedere spre munte
Vedere spre oraș
Nicolae Crețu
Expert imobiliar

+40 775 241 786


Solicită chiar acum o vizionare
Telefon
Sună acum Solicită vizionare
Necesare:

Site-ul nu poate funcționa corect fără aceste cookie-uri. Vezi cookie-urile

Statistică:

Strângem statistici anonime despre voi, vizitatorii unici, pentru a vă îmbunătăți experiența dumneavoastră. Vezi cookie-urile

Marketing:

Pentru a ne promova mai eficient serviciile noastre, folosim cookies pentru a vă identifica și a vă oferi proprietăți și servicii personalizate. Vezi cookie-urile

Acest site folosește cookies, află detalii. Alege ce tipuri de cookies dorești să permitem: