ID CP3033856

Vânzare, apartament, 1 cameră, str. Nicolae Dimo, Durlești.

ID CP3033856

67,480 €

Apartament cu 1 camere de vânzare
Durlești
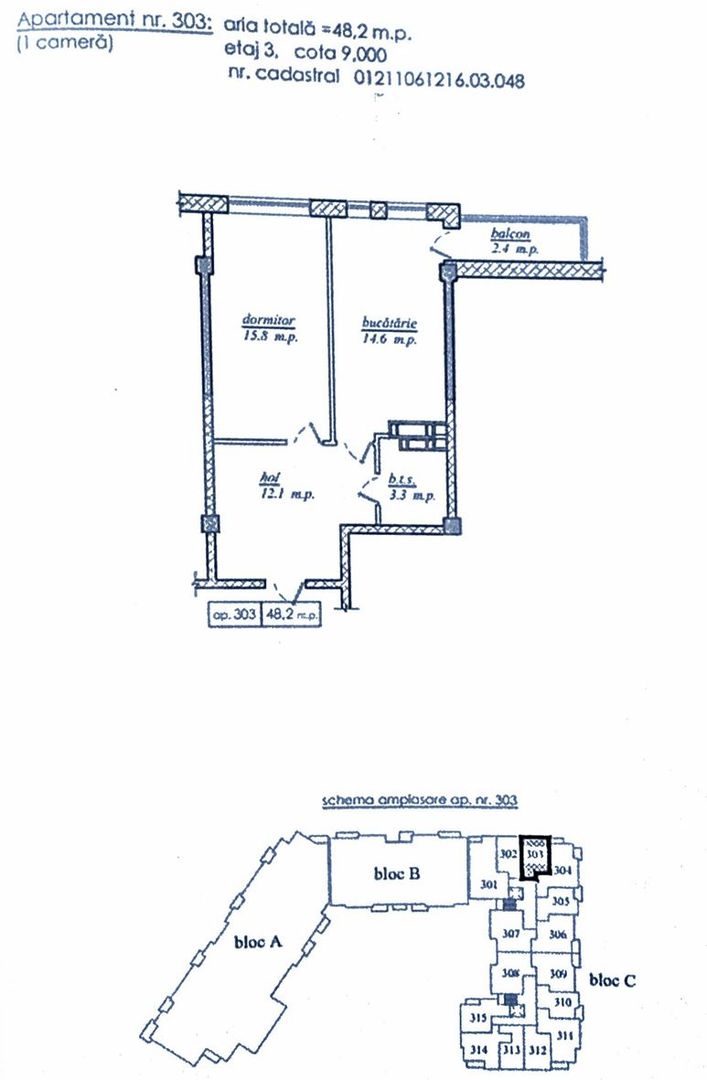
48.2 mp

High Garden este amplasat într-o zonă pitorească, cu aer curat și peisaje frumoase, oferind confort și liniște pentru locuitorii săi.

Complexul rezidențial High Garden este situat la doar 50 de metri de o grădiniță, ceea ce îl face o alegere ideală pentru familiile cu copii. În apropiere se află o sală de fitness și restaurantul Andys, precum și liceul de prestigiu Moldo-Turc Orizont.

Apartament cu o suprafață de 48,2 mp amplasat pe str. Nicolae Dimo, Durlești.

Compartimentare: antreu, 1 cameră, bucătăie, balcon, bloc sanitar.

Detalii tehnice:

- priveliste panoramică spre apus;

- încăperi luminoase și bine compartimentate;

- materiale calitative în construcție și finisaje durabile;

- cadru de beton monolit;

- apartamente: vor fi predate în varianta albă;

- geamuri panoramice;

- încălzire: cazan de gaz, încălzire autonomă, radiatoare

- utilități: ciclul primar de electricitate și apeduct

Facilitățile blocului:

- bloc la etapa de construcție Complexul High Garden;

- compania de construcție Poliprim Grup;

- curte amenajată pe interiorul complexului;

- două nivele de parcări subterane;

- construcție din beton armat, cu zidărie BCCA;

- termoizolare cu polistiren de 10 cm, geamuri termopan (3 sticle, 5 camere);

Anul predării: august 2027

Pentru mai multe detalii, nu ezitați să contactați expertul nostru.

Citește mai mult

  • Tip apartament
    Apartament
  • Număr camere
    1
  • Dormitoare
    1
  • Etaj
    3
  • Suprafață utilă
    48.2 mp
  • Disponibilitate
    Imediat
  • Anul finisării
    2027
  • Imobil
    Bloc de apart.
  • Construcție nouă
    Da
  • Număr etaje clădire
    9

Facilități

Apă
Canalizare
CATV
Curent
Gaz
Iluminat stradal
Internet
Mijloace de transport în comun
Străzi asfaltate
Telefon
Nina Grinco - Realist Estate Agency SRL
Nina Grinco
Agent imobiliar

+37378888735


Solicită chiar acum o vizionare
Telefon
Sună acum Solicită vizionare
Necesare:

Site-ul nu poate funcționa corect fără aceste cookie-uri. Vezi cookie-urile

Statistică:

Strângem statistici anonime despre voi, vizitatorii unici, pentru a vă îmbunătăți experiența dumneavoastră. Vezi cookie-urile

Marketing:

Pentru a ne promova mai eficient serviciile noastre, folosim cookies pentru a vă identifica și a vă oferi proprietăți și servicii personalizate. Vezi cookie-urile

Acest site folosește cookies, află detalii. Alege ce tipuri de cookies dorești să permitem: