ID CP2863234

Vânzare, apartament, 1 cameră + living, strada Bucovina, Ciocana

ID CP2863234

72,850 €

Apartament cu 1 camere de vânzare
Ciocana, Chișinău
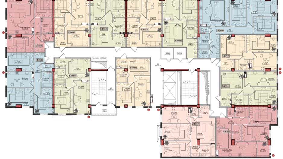
47 mp
2025

Vă propunem spre vânzare un apartament situat în Complexul rezidențial Bucovina 2, dezvoltat de Estate Invest Company, un proiect modern conceput pentru un stil de viață confortabil și sigur.

Imobilul se află în etapa de construcție, cu termen de finalizare estimat pentru finele anului 2027. Apartamentul va fi predat în varianta albă, oferind posibilitatea viitorului proprietar de a-și personaliza finisajele după propriul gust.

Locuința va beneficia de încălzire autonomă pe apartament, asigurând eficiență energetică și control individual al confortului termic.

Compartimentare: antreu, living, bucătărie, dormitor, bloc sanitar.

Facilități:

- apartament într-un complex rezidențial nou – Bucovina 2;

- dezvoltator: Estate Invest Company;

- termen de dare în exploatare: finele anului 2027;

- predare în varianta albă;

- încălzire autonomă;

- ideal pentru locuit sau investiție;

Complexul Bucovina 2 oferă o infrastructură modernă și un mediu rezidențial bine organizat, cu acces facil către punctele de interes ale orașului.

Pentru mai multe detalii, nu ezitați să contactați expertul nostru.

Citește mai mult

  • Tip apartament
    Apartament
  • Număr camere
    1
  • Dormitoare
    1
  • Număr bucătării
    1
  • Număr băi
    1
  • Etaj
    5
  • Suprafață utilă
    47 mp
  • Disponibilitate
    Imediat
  • An construcție
    2025
  • Construcție nouă
    Da
  • Număr etaje clădire
    9

Facilități

Apă
Canalizare
CATV
Curent
Gaz
Iluminat stradal
Internet
Izolație exterioară
Mijloace de transport în comun
Străzi asfaltate
Telefon
Eugen Chitoroagă - Realist Estate Agency SRL
Eugen Chitoroagă
Expert imobiliar

+37378888269


Solicită chiar acum o vizionare
Telefon
Sună acum Solicită vizionare
Necesare:

Site-ul nu poate funcționa corect fără aceste cookie-uri. Vezi cookie-urile

Statistică:

Strângem statistici anonime despre voi, vizitatorii unici, pentru a vă îmbunătăți experiența dumneavoastră. Vezi cookie-urile

Marketing:

Pentru a ne promova mai eficient serviciile noastre, folosim cookies pentru a vă identifica și a vă oferi proprietăți și servicii personalizate. Vezi cookie-urile

Acest site folosește cookies, află detalii. Alege ce tipuri de cookies dorești să permitem: