ID CP3040994

Vânzare, apartament, 1 cameră, strada Dimineții, Botanica

ID CP3040994

77,198 €

Apartament cu 1 camere de vânzare
Botanica, Chișinău
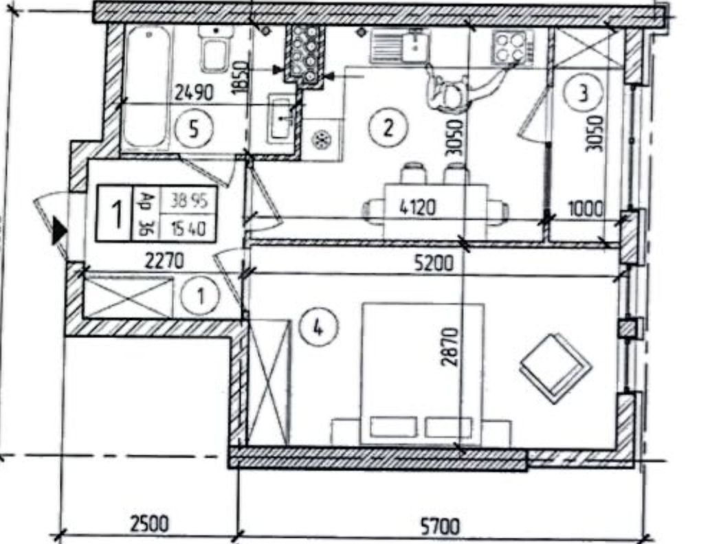
42.3 mp

Vânzare, apartament, 42,3 mp, Complexul SkyHouse, amplasat pe strada Dimineții 96, Botanica,

Compartimentare: antreu, 1 dormitor, bucătărie, bloc sanitar.

Facilități:

- varianta albă;

- etaj confortabil;

- încălzire autonomă – cazan individual;

- geamuri panoramice cu multă lumină naturală;

Facilitățile blocului:

- bloc nou, calitate premium;

- fațadă de calitate superioară;

- pereții din cărămidă roșie;

- curte amenajată cu teren de joacă;

- parcări subterane și exterioare;

- acces securizat și supraveghere video;

- acces facil la transport public.

În imediată apropiere se află: Parcul Valea Trandafirilor, CC Jumbo, supermarket, restaurante și cafenele, farmacii, banci etc.

Pentru mai multe detalii, nu ezitați să contactați expertul nostru.

Citește mai mult

  • Tip apartament
    Apartament
  • Număr camere
    1
  • Dormitoare
    1
  • Număr bucătării
    1
  • Număr băi
    1
  • Etaj
    3
  • Suprafață utilă
    42.3 mp
  • Disponibilitate
    Imediat
  • Anul finisării
    2026
  • Imobil
    Bloc de apart.
  • Construcție nouă
    Da
  • Număr etaje clădire
    18

Facilități

Apă
Canalizare
CATV
Curent
Gaz
Iluminat stradal
Internet
Mijloace de transport în comun
Străzi asfaltate
Telefon
Irina Maslov - Realist Estate Agency SRL
Irina Maslov
Agent imobiliar

+37378888249


Solicită chiar acum o vizionare
Telefon
Sună acum Solicită vizionare
Necesare:

Site-ul nu poate funcționa corect fără aceste cookie-uri. Vezi cookie-urile

Statistică:

Strângem statistici anonime despre voi, vizitatorii unici, pentru a vă îmbunătăți experiența dumneavoastră. Vezi cookie-urile

Marketing:

Pentru a ne promova mai eficient serviciile noastre, folosim cookies pentru a vă identifica și a vă oferi proprietăți și servicii personalizate. Vezi cookie-urile

Acest site folosește cookies, află detalii. Alege ce tipuri de cookies dorești să permitem: