ID CP2882684

Vânzare, penthouse, 4 camere, strada Ion Buzdugan, Buiucani.

ID CP2882684

470,000 €

Apartament cu 4 camere de vânzare
Buiucani, Chișinău
312 mp

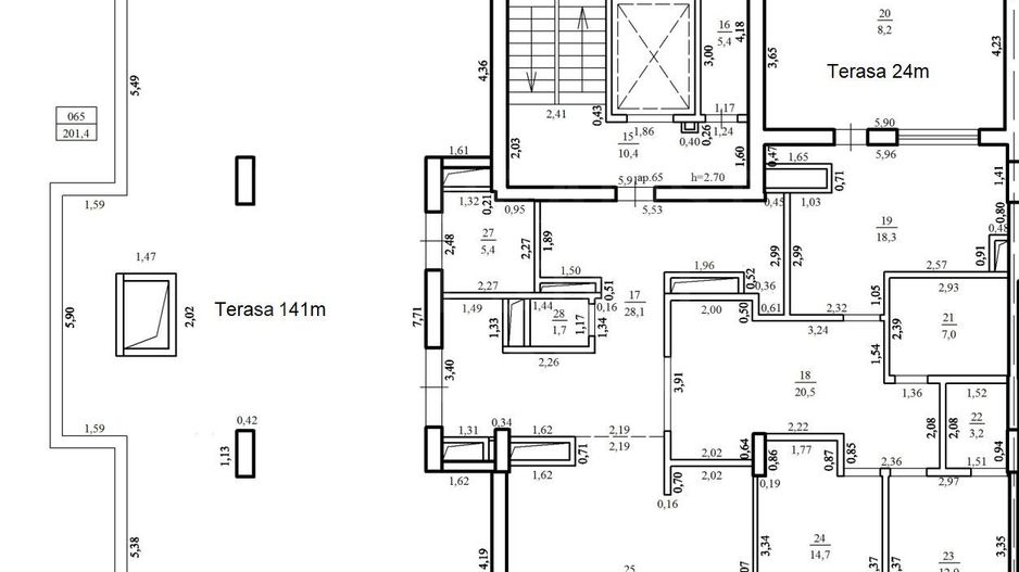
Vânzare penthouse cu suprafața 312 mp, amplasat in complex premiun Exfactor pe strada Ion Buzdugan 2A, Buiucani.

Bloc tip Club House , 56 apartamente toată casa !

Penthouse unical!

Un singur nivel!

Un singur apartament pe scara!

Marmura pe scări, ascensor Kleeman

*Varianta alba cu Proiect Design "premium+" inclus !!!

Suprafata interioara 147m compartimentata in:

- Salon cu bucatarie cu iesire la terasa principla de 141m

- Dormitor matrimonial cu terasa proprie de 24m spre apus

- 2 dormitoare copii

- 4 blocuri sanitare (1 tranzit p-u oaspeti si cu acces de la terasa principala)

- Proiect Individual de Design (cu supraveghere inclus in cost - 9000euro)

- Extra-cost 105m2 parcare subterana p-u 6 automobile + debara

Suprafata exterioara 171m compartimentata in:

- Terasa principala cu vedere 180 grade de 147m si cu posibilitate de a amplasa bazin, sauna

- Terasa din dormitorul matrimonial cu vedere la apus de 24m

- Bloc dat in exploatare 2021, doar 2 scari si 65 apartamente!

- Bloc premium din caramida rosie Makon+ izolare termica 10 cm

- Geamuri Salamander 3 sticle low-e 4 S

- Unicul apartament pe scara / un singur nivel!

- Variantă albă impecabilă;

- Incălzire cu cazan German de clasa A si podea calda calitativa pe toata suprafata;

- Lift-uri silențioase direct din apartament pina in parking

- Ogradă de tip închis

- Parcare subterana in 2 niveluri

- Supraveghere video și pază

- Market alimentar Linela la parter

Cel mai calitativ și scump bloc din sectorul Buiucani!

Te ajutăm să alegi cea mai personalizată și optimă variantă de creditare!

Îți poți face Visul mai aproape cu doar 20% aport financiar personal!

Pentru mai multe detalii, nu ezitați să contactați expertul nostru.

Citește mai mult

  • Tip apartament
    Apartament
  • Număr camere
    4
  • Dormitoare
    3
  • Număr bucătării
    1
  • Număr băi
    4
  • Etaj
    10
  • Suprafață utilă
    312 mp
  • Disponibilitate
    Imediat
  • Număr balcoane
    1
  • Număr etaje clădire
    10

Facilități

Apă
Canalizare
CATV
Curent
Gaz
Iluminat stradal
Internet
Mijloace de transport în comun
Străzi asfaltate
Telefon
Alexandru Gogeanu - Realist Estate Agency SRL
Alexandru Gogeanu
Expert imobiliar

+37378888567


Solicită chiar acum o vizionare
Telefon
Sună acum Solicită vizionare
Necesare:

Site-ul nu poate funcționa corect fără aceste cookie-uri. Vezi cookie-urile

Statistică:

Strângem statistici anonime despre voi, vizitatorii unici, pentru a vă îmbunătăți experiența dumneavoastră. Vezi cookie-urile

Marketing:

Pentru a ne promova mai eficient serviciile noastre, folosim cookies pentru a vă identifica și a vă oferi proprietăți și servicii personalizate. Vezi cookie-urile

Acest site folosește cookies, află detalii. Alege ce tipuri de cookies dorești să permitem: