ID CP2860008

Vânzare, penthouse, 4 camere, strada Alba Iulia, Buiucani.

ID CP2860008

365,000 €

Apartament cu 4 camere de vânzare
Buiucani, Chișinău
141.8 mp
2020

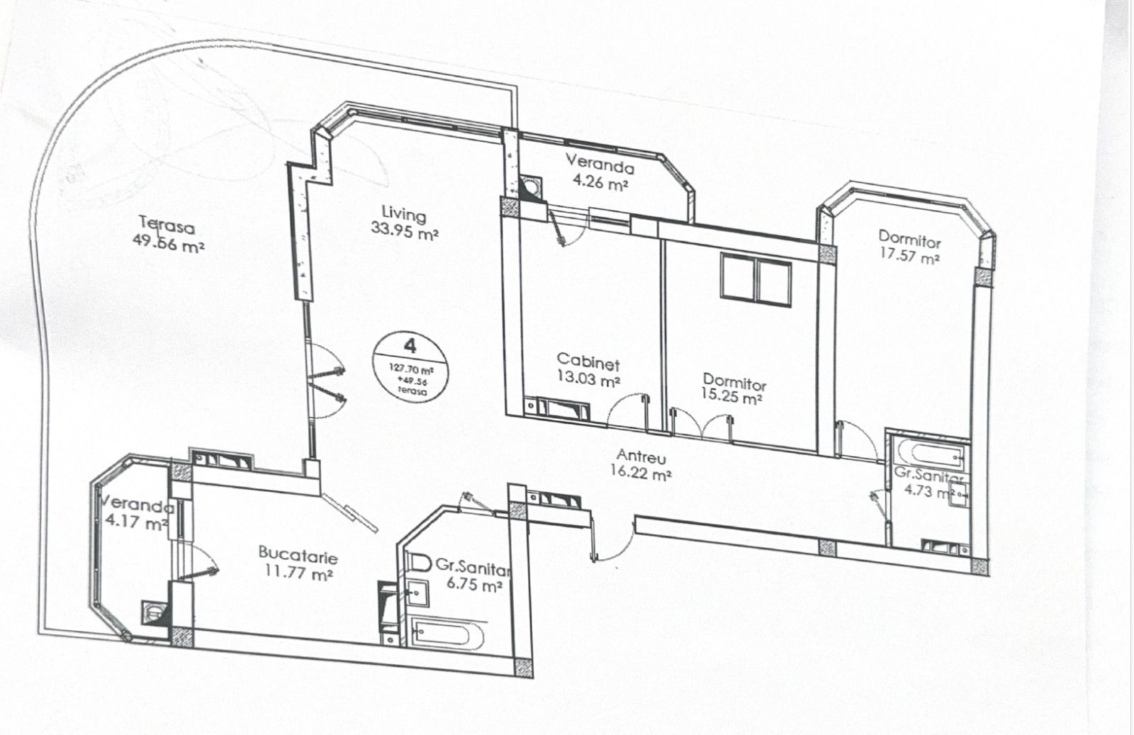
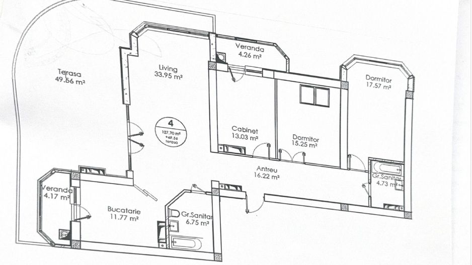
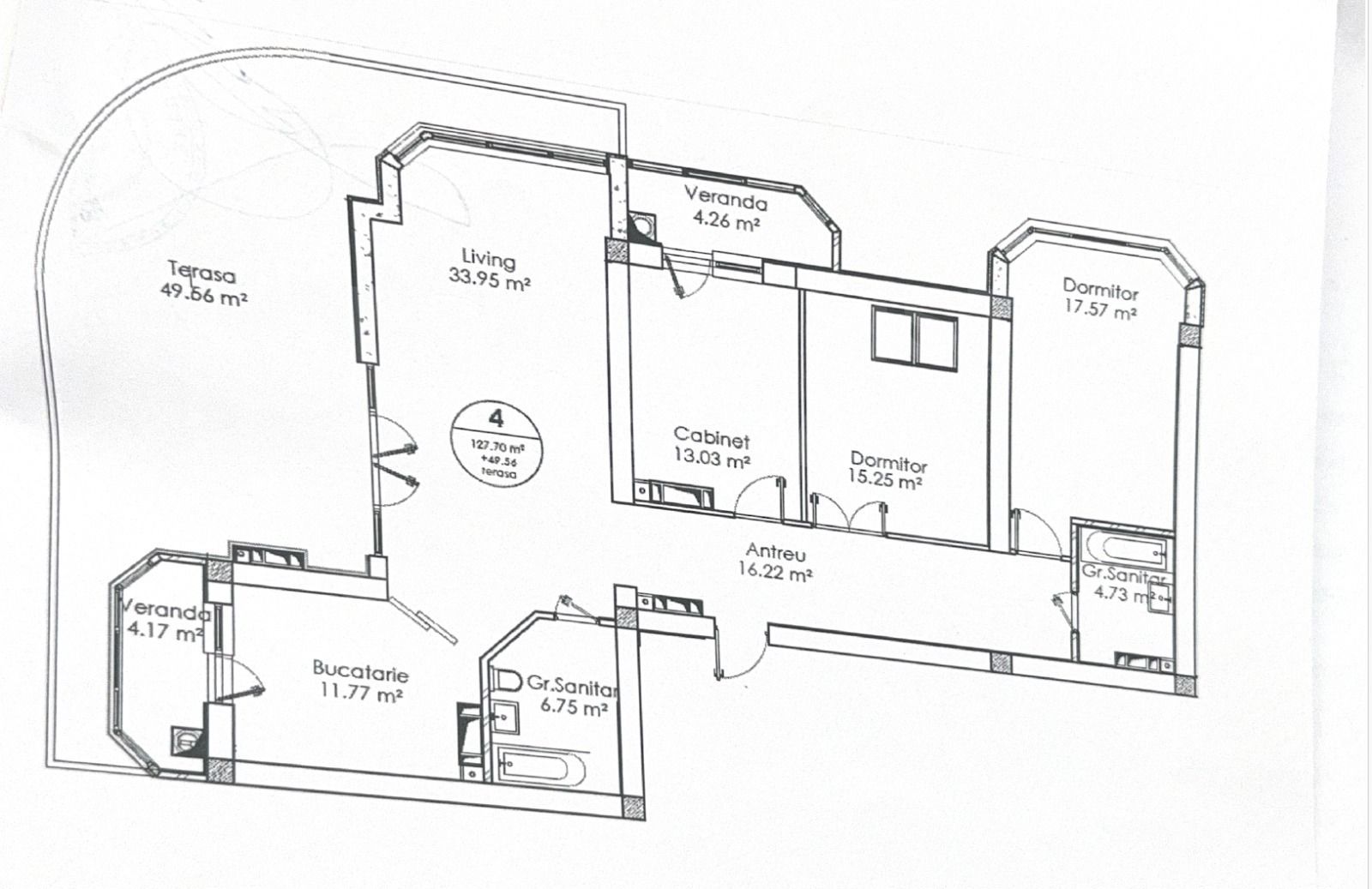
Vânzare penthouse exclusivist, cu suprafața totală de 177 mp, amplasat pe strada Alba Iulia, Buiucani.

Compartimentare: antreu, 3 dormitoare separate, dormitor matrimonial cu garderobă și bloc sanitar propriu, living separat, cu acces direct pe terasă, bucătărie separată de tip închis, bloc sanitar comun.

Facilități:

- penthouse intr-un nivel;

- suprafața interioară 127,7 mp + terasa panoramică de 49,5 mp;

- mobilier la comandă din MDF vopsit;

- tavane înalte: 3,1–3,5 m;

- încălzire autonomă individuală;

- terasa dispune de cazan separat + pardoseală caldă;

- pardoseală caldă + lemn stratificat;

- 3 zone cu sisteme de ventilare pentru circulație continuuă a aerului proaspăt;

- obiecte sanitare Hansgrohe & Villeroy & Boch;

- tehnică de uz casnic AEG, etc.;

- blat și pervazuri din Quartz.

Facilitățile blocului:

- bloc nou, construit de GONVARO, din piatră naturală de calcar (cotileț);

- parcare subterană – 35.000 € (extra-cost).

Proprietate fără alternativă pe piața sectorului Buiucani

Te ajutăm să alegi cea mai personalizată și optimă variantă de creditare!

Îți poți face Visul mai aproape cu doar 20% aport financiar personal!

Pentru mai multe detalii, nu ezitați să contactați expertul nostru.

Citește mai mult

  • Tip apartament
    Penthouse
  • Număr camere
    4
  • Dormitoare
    3
  • Număr bucătării
    1
  • Număr băi
    2
  • Etaj
    9
  • Suprafață utilă
    141.8 mp
  • Suprafață totală
    177 mp
  • Disponibilitate
    Imediat
  • Stare interior
    Ultrafinisat
  • Anul finisării
    2022
  • Număr balcoane
    1
  • Imobil
    Bloc de apart.
  • Stadiu construcție
    Finalizată
  • An construcție
    2020
  • Construcție nouă
    Da
  • Tip construcție
    Altele
  • Număr etaje clădire
    9
  • Cadastru
    Există
  • Intabulare
    Există
  • Mod de dobândire
    Contract

Facilități

Aer condiționat
Apă
Aragaz
Bideu
Bucătărie închisă
Bucătărie mobilată
Bucătărie utilată
Cabină de duș
Cadă
Calorifere
Canalizare
CATV
Centrală proprie
Curent
Dressing
Ferestre care se deschid
Frigider
Gaz
Geamuri cu izolație fonică
Geamuri cu protecție UV
Hotă
Iluminat stradal
Încălzire prin pardoseală
Interfon
Internet
Lift
Loc de joacă copii
Mașină de spălat rufe
Mașină de spălat vase
Mijloace de transport în comun
Mobilat complet
Mobilat lux
Parcare acoperită
Pază
Străzi asfaltate
Supraveghere video
Telecomandă poartă acces auto
Telecomandă poartă garaj
Telefon
TV
Uși interior MDF
Wireless
Eugeniu Doroș - Realist Estate Agency SRL
Eugeniu Doroș
Expert imobiliar

+37379 578 800


Solicită chiar acum o vizionare
Telefon
Sună acum Solicită vizionare
Necesare:

Site-ul nu poate funcționa corect fără aceste cookie-uri. Vezi cookie-urile

Statistică:

Strângem statistici anonime despre voi, vizitatorii unici, pentru a vă îmbunătăți experiența dumneavoastră. Vezi cookie-urile

Marketing:

Pentru a ne promova mai eficient serviciile noastre, folosim cookies pentru a vă identifica și a vă oferi proprietăți și servicii personalizate. Vezi cookie-urile

Acest site folosește cookies, află detalii. Alege ce tipuri de cookies dorești să permitem: