ID CP2785273

Vânzare, apartament, 3 camere, strada Ceucari, Râșcani

ID CP2785273

112,500 €

Apartament cu 3 camere de vânzare
Poșta Veche, Chișinău
90 mp
2023

Cartierul Cluj- primul complex rezidențial în Republica Moldova cu infrastructură proprie, nenumărate puncte de interes pentru locatari. Zonă ecologică, liniștită, amenajată cu spații verzi și havuz cu apă potabilă.

Este constituit din 8 blocuri locative, cu o capacitate de acomodare a 20 000 de persoane.

Blocurile rezidențiale ale Cartierului Cluj în Chișinău sunt construite din materiale de marcă superioară și corespund standartelor internaționale:

Se construiește conform principiilor ECO FRIENDLY, prin instalarea panourilor solare și a pompelor de căldură.

La vânzare sunt disponibile apartamente cu 1 odaie, 2 odăi și 3 odăi.

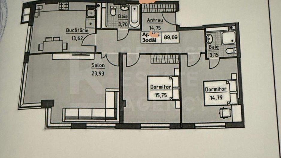
Apartament cu o suprafață de 90 mp de este amplasat pe strada Ceucari 1, Poșta Veche.

Compartimentare: antreu, 3 camere, bucătărie, 2 blocuri sanitare.

Facilități:

- geamuri termopane;

- încălzire autonomă;

- spațios;

- planificare reușită.

Facilitățile blocului:

- carcasă din monolit din beton armat;

- pereţii interiori şi exteriori din BCA Celco;

- faţadă izolată termic cu plăci din polistiren și vată minerală;

- finisaje din materiale BAUMIT;

- pereți – cărămidă;

- încălzire autonomă (cazan econom italian IMERGAS);

- curte închisă;

- supraveghere video;

- ascensoare silenţioase de ultima generație.

În apropiere sunt:

- 3 străzi în direcția Râșcani, Ciocana, Buiucani;

- 3 grădinițe;

- școală;

- spital;

- stadion;

- 2 terene pentru sport;

- centru comercial;

- farmacii, magazine;

- cafenele, restaurante.

Optimizarea spațiului rațional, prin construcția PARCĂRILOR SUBTERANE care vor acoperi 70% din apartamentele construite.

Te ajutăm să alegi cea mai personalizată și optimă variantă de creditare!

Îți poți face Visul mai aproape cu doar 20% aport financiar personal!

Pentru mai multe detalii, nu ezitați să contactați expertul nostru.

Citește mai mult

  • Tip apartament
    Apartament
  • Număr camere
    3
  • Dormitoare
    3
  • Număr bucătării
    1
  • Număr băi
    2
  • Etaj
    7
  • Suprafață utilă
    90 mp
  • Disponibilitate
    Imediat
  • Imobil
    Bloc de apart.
  • Stadiu construcție
    În construcție
  • An construcție
    2023
  • Tip construcție
    Cărămidă
  • Număr etaje clădire
    9

Facilități

Apă
Canalizare
CATV
Curent
Debara
Gaz
Grădină proprie
Iluminat stradal
Internet
Izolație exterioară
Izolație interioară
Lift
Mijloace de transport în comun
Străzi asfaltate
Telefon
Elena Andronachi - Realist Estate Agency SRL
Elena Andronachi
Agent imobiliar

+37378888683


Solicită chiar acum o vizionare
Telefon
Sună acum Solicită vizionare
Necesare:

Site-ul nu poate funcționa corect fără aceste cookie-uri. Vezi cookie-urile

Statistică:

Strângem statistici anonime despre voi, vizitatorii unici, pentru a vă îmbunătăți experiența dumneavoastră. Vezi cookie-urile

Marketing:

Pentru a ne promova mai eficient serviciile noastre, folosim cookies pentru a vă identifica și a vă oferi proprietăți și servicii personalizate. Vezi cookie-urile

Acest site folosește cookies, află detalii. Alege ce tipuri de cookies dorești să permitem: