ID CP2906401

Vânzare, apartament, 2 camere, str. Calea Ieșilor, Sculeni

ID CP2906401

133,500 €

Apartament cu 2 camere de vânzare
Sculeni, Chișinău
63 mp

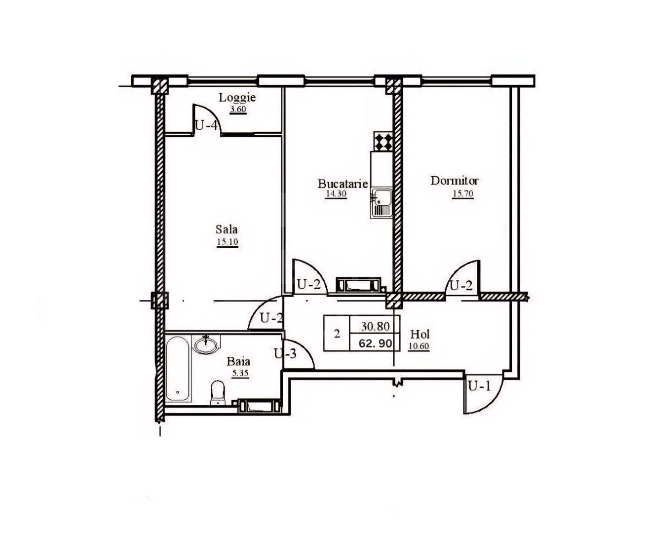
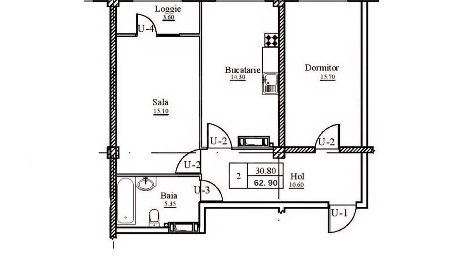
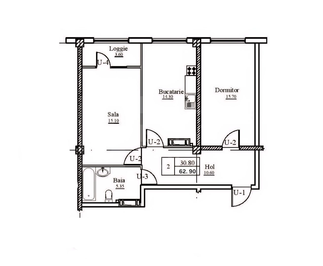
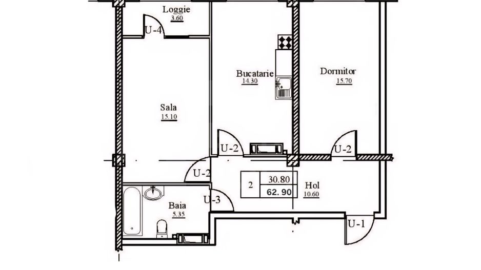
Apartament cu o suprafață de 63 mp, amplasat pe strada Calea Ieșilor, Sculeni.

Compartimentare: 2 dormitoare, antreu, bucătărie, balcon, bloc sanitar.

Facilități:

- varianta albă;

- încălzire autonomă;

- geamuri panoramice;

- priveliște spre apus.

Facilitățile blocului:

- bloc nou;

- infrastructură dezvoltată;

- acces facil către transportul public;

- teren de joacă pentru copii.

Te ajutăm să alegi cea mai personalizată și optimă variantă de creditare!

Îți poți face Visul mai aproape cu doar 20% aport financiar personal!

Pentru mai multe detalii, nu ezitați să contactați expertul nostru

Citește mai mult

  • Tip apartament
    Apartament
  • Număr camere
    2
  • Dormitoare
    2
  • Număr bucătării
    1
  • Număr băi
    1
  • Etaj
    4
  • Suprafață utilă
    63 mp
  • Disponibilitate
    Imediat
  • Număr balcoane
    1
  • Imobil
    Bloc de apart.
  • Număr etaje clădire
    13

Facilități

Apă
Bucătărie închisă
Calorifere
Canalizare
CATV
Centrală proprie
Curent
Gaz
Geamuri termopan
Iluminat stradal
Interfon
Internet
Izolație exterioară
Lift
Loc de joacă copii
Mijloace de transport în comun
Pază
Străzi asfaltate
Telefon
Anatolie Eni - Realist Estate Agency SRL
Anatolie Eni
Agent imobiliar

+37378888583


Solicită chiar acum o vizionare
Telefon
Sună acum Solicită vizionare
Necesare:

Site-ul nu poate funcționa corect fără aceste cookie-uri. Vezi cookie-urile

Statistică:

Strângem statistici anonime despre voi, vizitatorii unici, pentru a vă îmbunătăți experiența dumneavoastră. Vezi cookie-urile

Marketing:

Pentru a ne promova mai eficient serviciile noastre, folosim cookies pentru a vă identifica și a vă oferi proprietăți și servicii personalizate. Vezi cookie-urile

Acest site folosește cookies, află detalii. Alege ce tipuri de cookies dorești să permitem: