ID CP2587668

Vânzare, penthouse, strada Nicolae Dimo ,Durlesti

ID CP2587668

171,700 €

Apartament cu 3 camere de vânzare
Durlești
137.36 mp

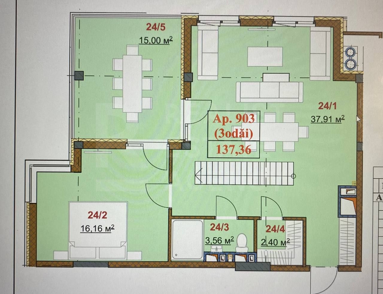
Apartament tip penthouse cu o suprafață de 137.36 mp, amplasat pe strada Nicolae Dimo, Durlesti.

Compartimentare: antreu, 3 dormitoare, living, bucătărie + salon, balcon, terasă, 3 blocuri sanitare.

Facilități:

- încălzire autonomă individuală;

- geamuri panoramice;

- apartament foarte luminos cu vizor panoramic;

- înălțimea tavanelor- 2,90 m;

- fațadă ventilată.

Facilitățile blocului:

- Accesibilitate Urbană

Amplasat strategic în inima orașului Durlești, Complexul Solomon oferă acces rapid către centrul urban și rețelele de transport public. Proximitatea față de servicii esențiale și zone comerciale asigură un stil de viață activ, modern și confortabil.

- Estetică Modernă

Fiecare apartament este gândit pentru a valorifica lumina naturală și spațiul, cu finisaje contemporane și un design aerisit. Arhitectura clădirii reflectă tendințele actuale, oferind o prezență elegantă și rafinată în peisajul urban.

- Confort Comunitar

Complexul Solomon din Durlești, str. Nicolae Dimo, pune accent pe calitatea vieții de zi cu zi. Zonele comune sunt concepute pentru relaxare, socializare și siguranță – de la locuri de joacă sigure pentru copii, până la parcări moderne și spații verzi pentru întreaga familie.

- Curte securizată;

Complexul locativ Solomon din Durlești pune pe primul loc siguranța rezidenților săi, oferind o curte interioară complet securizată, accesibilă exclusiv locatarilor.

- Zone de joacă pentru copii;

Un mediu ideal pentru familiile cu copii, amenajând zone moderne de joacă, gândite special pentru siguranța și bucuria celor mici. Aceste spații sunt amplasate în interiorul curții securizate, departe de drumurile publice, oferind un cadru liniștit și protejat pentru joacă zilnică.

Te ajutăm să alegi cea mai personalizată și optimă variantă de creditare!

Îți poți face Visul mai aproape cu doar 20% aport financiar personal!

Pentru mai multe detalii, nu ezitați să contactați expertul nostru.

Citește mai mult

  • Tip apartament
    Apartament
  • Număr camere
    3
  • Dormitoare
    3
  • Număr bucătării
    1
  • Număr băi
    3
  • Etaj
    10
  • Suprafață utilă
    137.36 mp
  • Suprafață totală
    137.36 mp
  • Disponibilitate
    Imediat
  • Anul finisării
    2027
  • Număr balcoane
    1
  • Imobil
    Bloc de apart.
  • Număr etaje clădire
    10

Facilități

Apă
Canalizare
CATV
Curent
Gaz
Iluminat stradal
Internet
Mijloace de transport în comun
Străzi asfaltate
Telefon
Vlad Comanac - Realist Estate Agency SRL
Vlad Comanac
Agent imobiliar

+37378888593


Solicită chiar acum o vizionare
Telefon
Sună acum Solicită vizionare
Necesare:

Site-ul nu poate funcționa corect fără aceste cookie-uri. Vezi cookie-urile

Statistică:

Strângem statistici anonime despre voi, vizitatorii unici, pentru a vă îmbunătăți experiența dumneavoastră. Vezi cookie-urile

Marketing:

Pentru a ne promova mai eficient serviciile noastre, folosim cookies pentru a vă identifica și a vă oferi proprietăți și servicii personalizate. Vezi cookie-urile

Acest site folosește cookies, află detalii. Alege ce tipuri de cookies dorești să permitem: