ID CP2874408

Vânzare, apartament, 2 camere, strada Vasile Lupu, Buiucani

ID CP2874408

136,610 €

Apartament cu 2 camere de vânzare
Buiucani, Chișinău
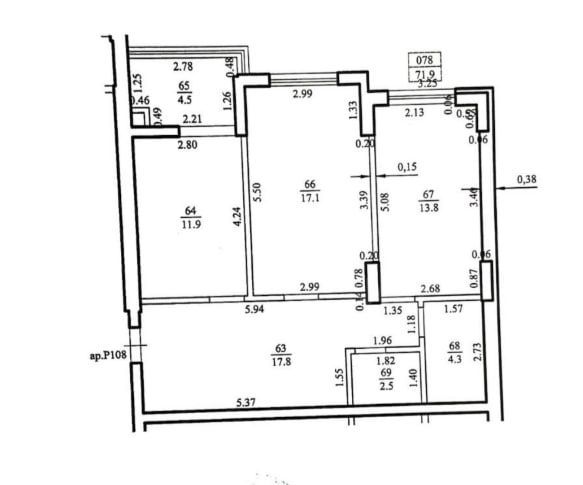
71.9 mp

Vânzare apartament cu suprafața 71,9 mp amplasat pe strada Vasile Lupu 28/B, Buiucani.

Compartimentat în: 2 dormitoare, bucătărie, living, 1 bloc sanitar, 1 balcon.

Facilități:

- variantă albă;

- compartimentare reușită;

- bine iluminat;

- contoare la toate rețelele de gaz, lumină, apă;

Facilitățile blocului:

- compania de construcție Ex-Factor.

- fațada termoizolată cu vată minerală de la 80-100mm,

- finisată cu tink european, marca Baumit, Caparol;

- parterul blocului finisat cu granit;

- 3 nivele de parcări subterane;

- 1 nivel de spaţii comerciale;

- ascensoare silențioase Kleemann, ce coboară inclusiv şi la parcări;

- sistem de pază şi supraveghere video 24/24.

- Priveliște frumoasă spre natură și panorama orașului!

- curtea complexului este amenajată cu teren de joacă pentru copii,

- pază și supraveghere video 24/24

- parcare subterană.

În imediată apropiere găsiți: parcurile Valea Morilor și Dendrarium, bănci, saloane de frumusețe, supermarket Linella, grădinițe.

Te ajutăm să alegi cea mai personalizată și optimă variantă de creditare!

Îți poți face Visul mai aproape cu doar 20% aport financiar personal!

Pentru mai multe detalii, nu ezitați să contactați expertul nostru.

Citește mai mult

  • Tip apartament
    Apartament
  • Număr camere
    2
  • Număr bucătării
    1
  • Număr băi
    1
  • Etaj
    Parter
  • Suprafață utilă
    71.9 mp
  • Suprafață totală
    71.9 mp
  • Disponibilitate
    Imediat
  • Număr balcoane
    1
  • Număr etaje clădire
    13

Facilități

Apă
Canalizare
CATV
Curent
Curte comună
Debara
Gaz
Iluminat stradal
Internet
Lift
Loc de joacă copii
Mijloace de transport în comun
Străzi asfaltate
Telefon
Ștefan Butnaru
Agent imobiliar

+37378888266


Solicită chiar acum o vizionare
Telefon
Sună acum Solicită vizionare
Necesare:

Site-ul nu poate funcționa corect fără aceste cookie-uri. Vezi cookie-urile

Statistică:

Strângem statistici anonime despre voi, vizitatorii unici, pentru a vă îmbunătăți experiența dumneavoastră. Vezi cookie-urile

Marketing:

Pentru a ne promova mai eficient serviciile noastre, folosim cookies pentru a vă identifica și a vă oferi proprietăți și servicii personalizate. Vezi cookie-urile

Acest site folosește cookies, află detalii. Alege ce tipuri de cookies dorești să permitem: